We are delighted to present this unique coastal property, offering exceptional potential in one of the most strategic locations of the region. Perfectly positioned near Vibo Valentia, Pizzo, and the Industrial Zone of Maierato, the estate benefits from excellent connectivity while maintaining a tranquil and private atmosphere.
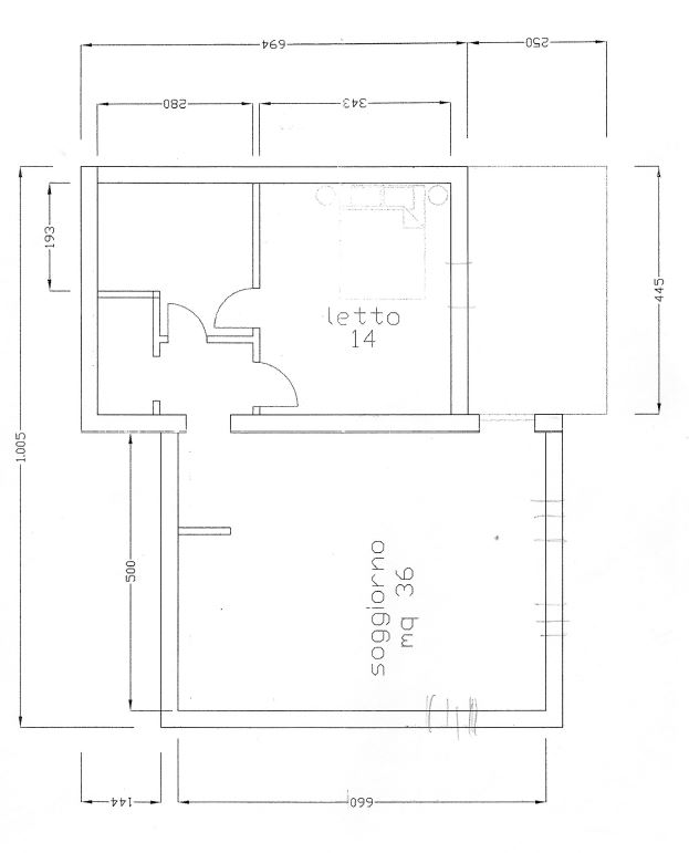
The property currently comprises a residential dwelling of approximately 70 sqm, located toward the front of the land. Access is through a grand private entrance lined with iconic cypress trees, reminiscent of classic Italian landscapes — offering a charming and cinematic welcome.
Whether preserved as a serene private residence or reimagined for commercial purposes such as an event venue, hospitality project, or boutique business, the site presents outstanding potential for future development.
Land
Folio 229 - Vineyard 7.55 acres
Folio 382 - Agricultural land 37.38 acres
Folio 411 – Agricultural land – 29.09 acres
Living Area: Open-plan living and dining space with a large sofa, dining area, and fully equipped kitchen.
Bedroom: Spacious double bedroom with access to an en-suite bathroom.
En-suite Bathroom: Features a Jacuzzi bath, shower, toilet, bidet, and sink — all presented in a stylish modern finish.
Timber/PVC double-glazed windows throughout
Pump and water tank system
Electric water boiler
Air conditioning (hot and cold)
Excellent strategic location close to major centers and coastal amenities
Private and secure access
Development potential for residential or business use
Charming Italian character, enhanced by its iconic cypress-lined driveway
€ 350.000

























