Circa. 22000 sqm InvestmentDevelopment Land FOR SALE

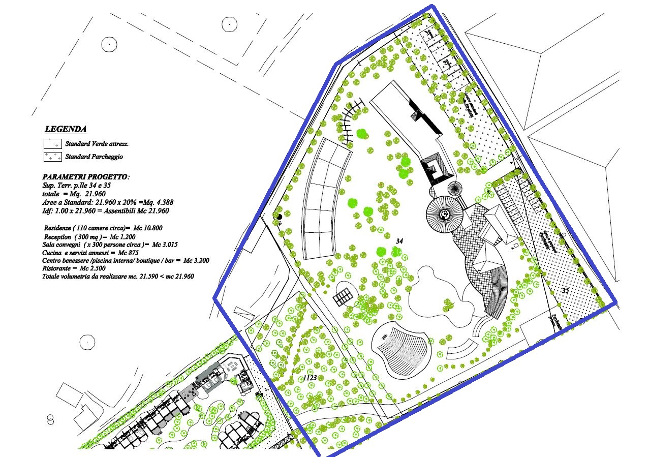
Identified in the Land Registry on Sheet no. 6 parcels 34, 35, for a total of 21,960 square meters falling within Z.T.O. E1 (Agricultural Ambiyo – Tree-lined plain) of the current PRG.

Planning Permission available for a Touristic Resort.
Watch the DRONE Video on our YouTube Channel
For more information please make an inquiry.

  • 10 year building guarantee
  • Attractive Payment Plans
  • Choice of Finish - Tiles, Doors & Windows
  • Close to all main amenities

Map

In order to make an inquiry please send an email to info@windrushalliance.com.

    Please complete the following form and a Windrush Representative will be in contact with you shortly. Thank You.






    Instant Book
    /