Complesso Azzurro | Designed Villas

Complesso Azzurro – Renovation Project
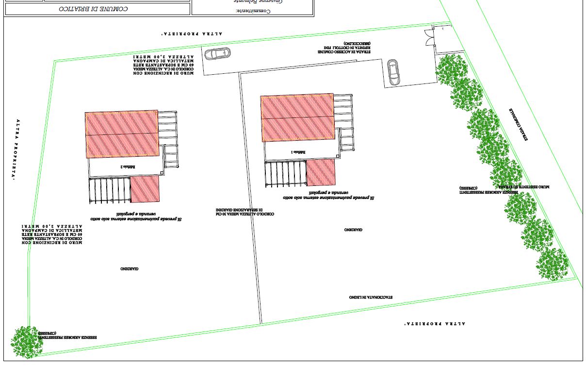
Currently Under Construction

2
plots with Structure – each approx. 2000 sqm – Private entrances,
amazing sea view. Large wrap around garden. All services in place i.e. well water, electricity, sewer (treatment plant).

In-Front – The land in front is
zoned as Agricultural land. It will not be possible to re-zone this
land. If a client who buys this section of land would like to purchase
more land, it is possible.

Finished Villa – €500,000

GF – 3 Bedrooms – 2 ensuite + Family bathroom, open plan living area with access to a large covered terrace
140 sqm.
SF
– This area is under the roof with a height of 1.98m in the highest
point. Suitable for a kid’s room + office or Cinema room + relaxation
area. This area leads to a large terrace overlooking the coast.
85 sqm.
Terrace First Floor – 45 sqm.
Patio Ground Floor – Canopy & Pergola 100 sqm
The property is located within 300m of the sea.

Currently
the developer has designed a floor plan. A potential client can either
go with this design or they can make amendments. The developer will also
give a standard specification, there will be a number of different
options.

This property can be purchased as it is or with a
project i.e. Key Ready. Ideal for someone who is looking for privacy yet
wants close proximity to the beach & towns.

A fantastic
opportunity to buy your own little piece of Italy. This project Sant’
Irene gives a potential client a great possibility to get a tailored and
designed property without the hassle. A full process is involved in the
purchase price.
NOTE: It is possible to work on the internal floor plan should you decide.

For more information please make an inquiry.
  • 10 year building guarantee
  • Attractive Payment Plans
  • Choice of Finish - Tiles, Doors & Windows
  • Close to all main amenities
  • FREE Completion Service
  • FREE Mortgage Advice
  • FREE Snagging Report
  • Private garden
  • Private Pool - possible
  • Sea views

Map

In order to make an inquiry please send an email to info@windrushalliance.com.

    Please complete the following form and a Windrush Representative will be in contact with you shortly. Thank You.






    Instant Book
    /